Penthouses

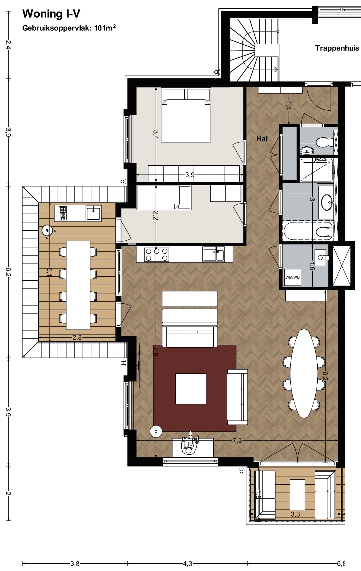
Residentie I-E Penthouse Westzijde
Op de bovenste verdieping van deze villa, heeft u aan de westkant een penthouse van 101 m².

Kenmerkend voor deze residentie is het grote ronde raam van 2 meter doorsnede, waar je in of naast kan gaan zitten en genieten van het prachtige uitzicht over de Oude Rijn. Daarnaast hebben we gekozen voor een recht dak dat na 1,50 meter, gebogen doorloopt tot een interne hoogte van 2,83 cm. Tezamen met de grote ramen en de grote glazen puien, krijgt u een ruimtelijk en uniek interieur.
14 m² Terras op het zuidwesten en een tweede terras met uitzicht over het vaarwater maakt het uitzicht dynamisch
Vanuit de open keuken met kookeiland stapt u door de openslaande deuren het grote terras op van 14 m², gelegen op het zuid/zuidwesten, waarbij de afscherming onderdeel uitmaakt van het dak. Hier kunt u heerlijk beschermd genieten van de allerlaatste zonnestralen. Vanaf het terras op het zuiden aan de Rijnzijde kunt u al snel genieten van de ochtendzon. Het natuurlijke leiendak reflecteert de nostalgie van weleer en de grote ronde ramen maken deze verdieping een lust voor het oog.
Prijs € 789.000 v.o.n.



Residentie I-F Penthouse Oostzijde
Het 100 m² grote penthouse aan de rustige oostzijde biedt u naast het uitzicht over de Oude Rijn, een prachtig uitzicht op de monumentale Plataan en het historische straatje van 's-Molenaarsweg met haar monumentale panden.

Vanuit de grote living en open keuken, loopt u het terras aan de Oude Rijnzijde op waar u tot en met de avond kan genieten van de zon. Of u loopt via de keukengedeelte het langgerekt terras aan de oostzijde op. Daar kunt u heerlijk koffie drinken en genieten van de eerste zonnestralen. We kunnen wel veronderstellen dat dit appartement de meeste zonuren kent. Het terras is onderdeel gemaakt van het leiendak. Dit biedt naast veel privacy, ook meer bescherming tegen de weerselementen.
Dit appartement geeft een rijk vergezicht met het uitzicht op de monumentale Plataan, de historische 's-Molenaarsweg en door de bocht van de Oude Rijn.
Er is gekozen voor 2 slaapkamers aan de noordzijde, een ruime badkamer en toiletruimte bereikbaar via de hal. Vanuit de brede hal loopt u de woon- eetkamer in, waar u een uniek uitzicht krijgt door het 2 meter grote ronde raam. De glazen puien grenzend aan beide terrassen bieden veel licht in combinatie met het gebogen dak (vanaf 1,50 meter). Het raam waar u in kan gaan zitten, maakt deze verdieping uniek en spannend.
Het leiendak en de houten boeidelen geven het nostalgische gevoel, maar het triple glas, hoge isolatiewaarde in combinatie met een warmtepomp en zonnepanelen (natuurlijk uit het zicht) geeft de historische uitstraling een moderne twist met een A+++ energielabel.
Prijs € 775.000 v.o.n.


Een persoonlijke Penthouse verdieping van meer dan 200 m² is mogelijk!

Wij kunnen ons voorstellen dat u verliefd wordt op dit project, maar toch meer ruimte en privacy wilt hebben. Nu is het mogelijk om de twee appartementen per verdieping met elkaar te verbinden tot één grote. Dit kan dus bij elke verdieping. U krijgt dan volgens bovenstaand concepttekening 207 m² woonruimte, een persoonlijke ontvangsthal, 3 grote terrassen en meer dan 30 meter uitzicht van binnenuit. Vanuit het oosten vroeg in de ochtend tot laat in de avond genieten van de zon op het westen, het groen en het uitzicht over de Oude Rijn en de historische 's-Molenaarsweg.
Creëer exclusief een eigen verdiepingsvloer met een appartement van meer dan 200 m² en 30 meter uitzicht vanuit het woon- en keukengedeelte van 105 m².
In samenwerking met de architect en aannemer kunnen wij uw wensen inzichtelijk maken. Wij hebben een aftrap gemaakt voor het penthouse, maar de indeling kan natuurlijk gewijzigd worden.
Wees wel snel, we denken dat er veel animo voor dit project is en het samenvoegen van woonruimtes kan maar 3 maal.
Prijs op aanvraag